Després de diversos anys d’obres, la ciutat de Barcelona ha remodelat un dels seus mercats municipals més emblemàtics. El projecte, dirigit per l’arquitecte Josep Lluís Mateo, ha significat la modernització de les instal·lacions i la reorganització del sistema comercial. S’ha recuperat la coberta i s’ha renovat la façana exterior mitjançant un nou revestiment. Aquest nou aspecte exterior ofereix a les instal·lacions més visibilitat i una imatge més moderna. A banda, permet tamisar la llum solar que arriba a l’interior del mercat i impedir la radiació solar directa cap als productes exposats en les parades.
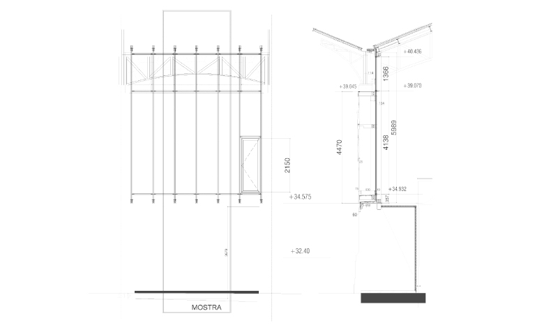
GARCIA FAURA ha estat la responsable d’executar diverses zones de rehabilitació. D’una banda, tot l’aspecte exterior del mercat, amb la fabricació i instal·lació de més de 1.500 metres quadrats de mur cortina d’acer i revestiment de segona pell realitzat mitjançant xapa d’acer inoxidable plegada i perforada. L’empresa també ha estat la responsable d’executar el sistema de tancament de les 18 parades exteriors encastades en l’estructura del mercat, formades per uns panells d’acer galvanitzat i portes basculants que, un cop obertes, exerceixen la funció de visera de la pròpia parada. A l’interior del mercat, GARCIA FAURA ha instal·lat tancaments interiors de vidres laminars i trempats, transparents i de color, així com nombrosos treballs metàl·lics en la zona d’accessos











