Renovació integral d’un edifici de 1967 per adequar-lo als requeriments propis dels actuals edificis d’oficines. El projecte comportava la substitució de les façanes per uns nous tancaments que interpreten, en termes actuals, les traces compositives marcadament verticals d’aquest sector de l’Eixample. La nova façana principal usa el vidre com a material protagonista, en un un pla llis i subtil, amb un marcat sentit tecnològic, disposat segons unes franges verticals que manifesten el gruix i la complexitat d’un tancament on els buits es defineixen per unes tribunes envidriades que destaquen sobre el fons d’un mur calat construït a partir d’una gelosia de tubs ceràmics.
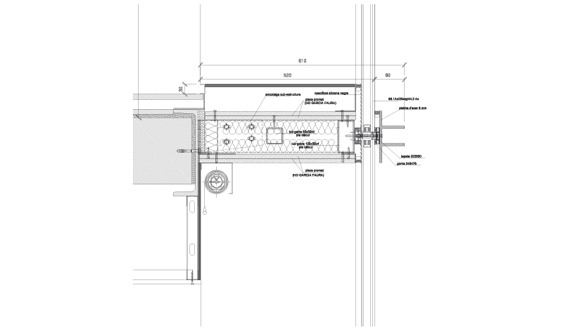
GARCIA FAURA ha executat el mur cortina de façana principal, que combina perfileria d’alumini a planta baixa, entrants i sortints amb finestres puntuals, envidriaments fixes i revestiment de xapa d’alumini a les plantes d’oficina. Es combina amb una façana interior de grans finestrals d’alumini i revestiment de gran complexitat, formant voladissos i cortiners en façana principal. Els treballs es completen amb l’execució de baranes de vidre, lluernes i altres elements que integren aquesta gran rehabilitació, complexa i detalladament analitzada des del punt de vista del càlcul estructural.











