Rénovation d’un immeuble emblématique de la ville, construit en 1992 dans la zone du port olympique, sur le front de mer, dans le quartier de San Marti. Avec ses 154 mètres de haut et ses 40 étages, c’est l’un des gratte-ciel les plus hauts de Catalogne. Un centre commercial occupe le rez-de-chaussée et les autres étages abritent des bureaux, qui appartiennent pour la plupart à l’assurance qui donne son nom à la tour.
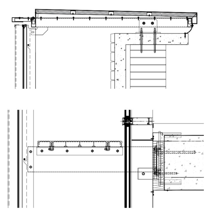
GARCIA FAURA a réalisé 480 m2 de mur-rideau en aluminium pour couvrir la façade de l’entrée du bâtiment, ainsi que 2 400 m2 de double-peau, des vitrages sérigraphiés et un revêtement de façade des 4 premiers étages, à l’aide d’un nouveau système d’extrusion, conçu spécifiquement pour ce projet. Dans la zone intérieure du soubassement de la tour, près de 850 m2 de revêtements en verre ont été installés. Il faut noter la complexité de la solution adoptée pour la finition supérieure, ainsi que la fermeture intérieure des double-vitrages avec structure en fer.












